STEEL (SHOP DRAWINGS)

  • Home
  • /
  • STEEL (SHOP DRAWINGS)

We are providing services to the Steel Fabricators, Contractors & manufactures. For Quality assurance, we are associate members with AISC, ACI AND CRSI.

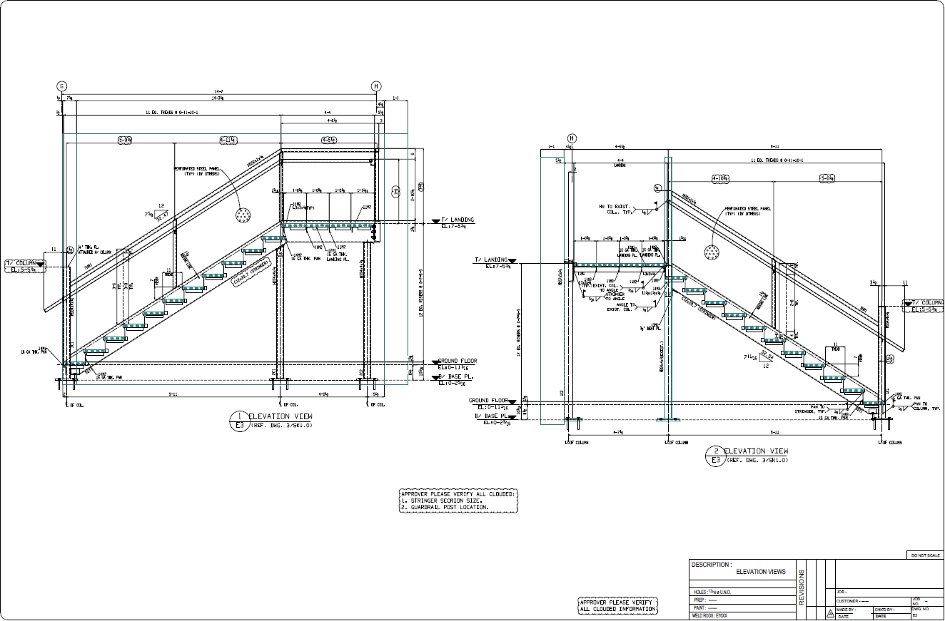
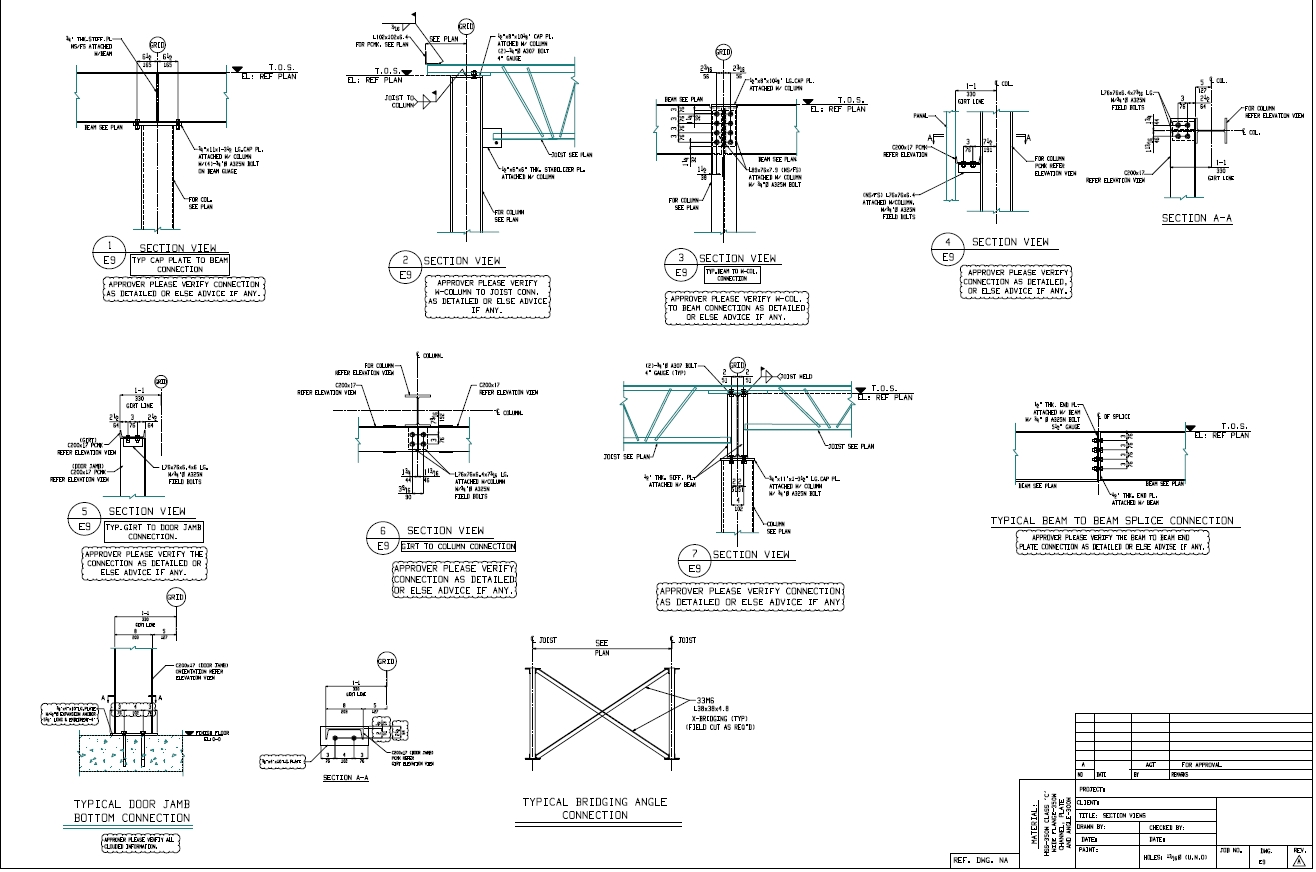
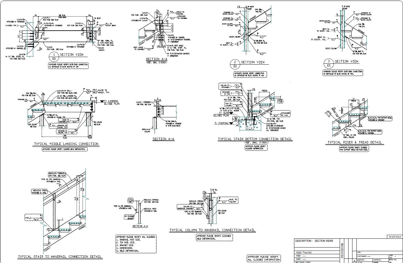
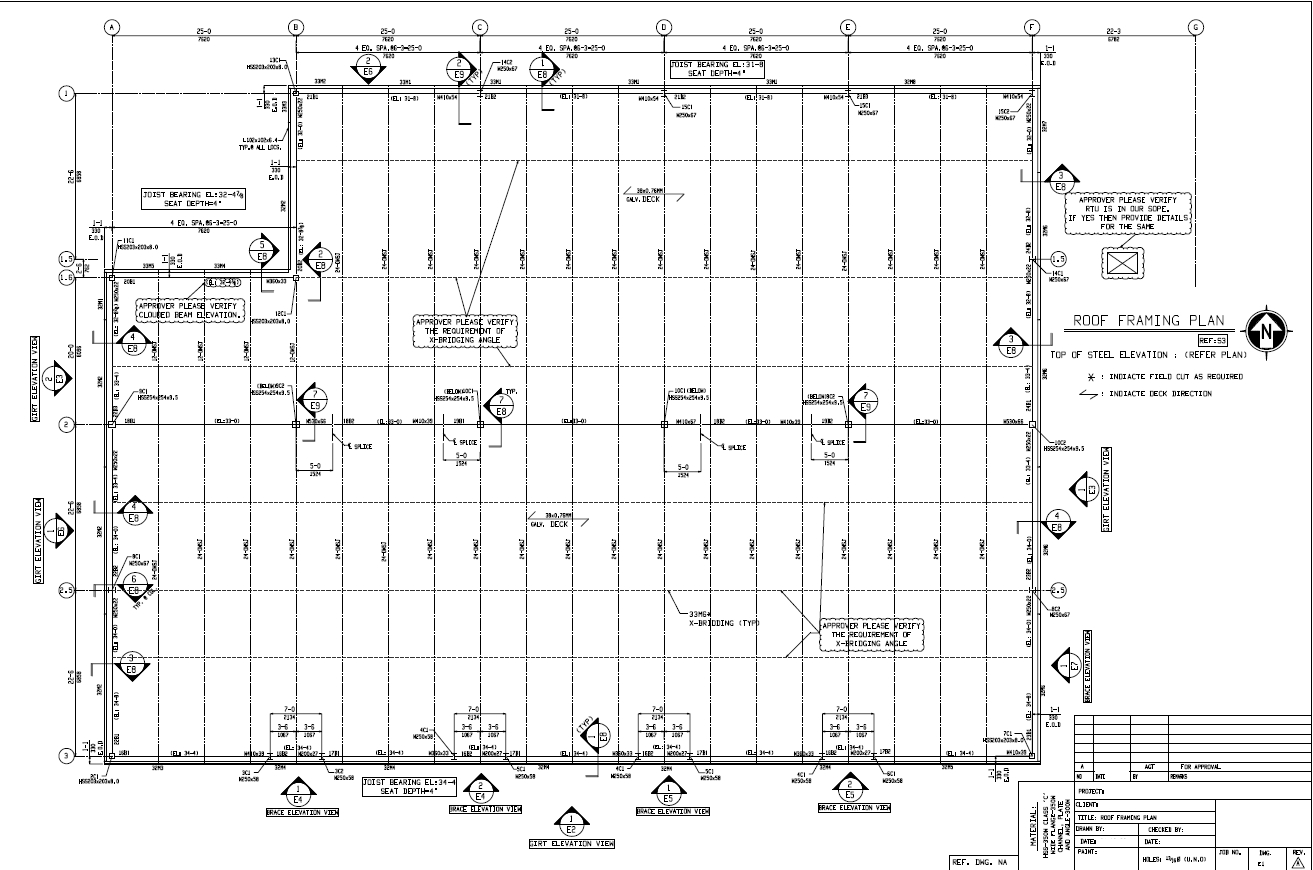
We provide accurate and high quality drawings for structural steel fabricators. Our detailing well trained staff is proficient of doing all type of work complies with AISC, NISC, CISC, ASTM BS, IS CODES, requirement of as well as IBC, OHSA.

Our Services include:

  • Structural & Construction Detailing
  • Anchor Bolt & Connection Details
  • Shop Drawings & Fabrication Drawings
  • Quantity Take-Offs & BOQs
  • Design Review & Technical Support
  • Construction Documentation Assistance


SUBSCRIBE FOR NEW DESIGNS AND RENDERING STYLES EACH WEEK

We

Do Building Design

Create Artistic Renderings.

give life to your vision.

WhatsApp Chat on WhatsApp