CAD AND REVIT DRAFTING

  • Home
  • /
  • CAD AND REVIT DRAFTING

Our CAD and BIM Services support architects, engineers, contractors, and developers with accurate, coordinated, and construction-ready drawings.

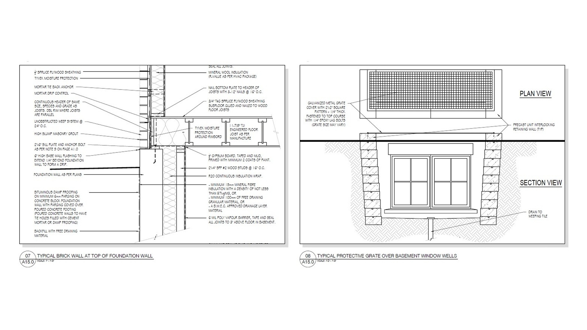
These drawings provide essential information such as precise dimensions, material specifications, clash detection insights, and coordinated layouts, ensuring seamless communication among stakeholders and efficient execution on-site. BIM detailing drawings not only facilitate effective communication among architects, engineers, and contractors but also play a crucial role in minimizing errors and optimizing efficiency throughout the construction process.

CAD & BIM Services include:

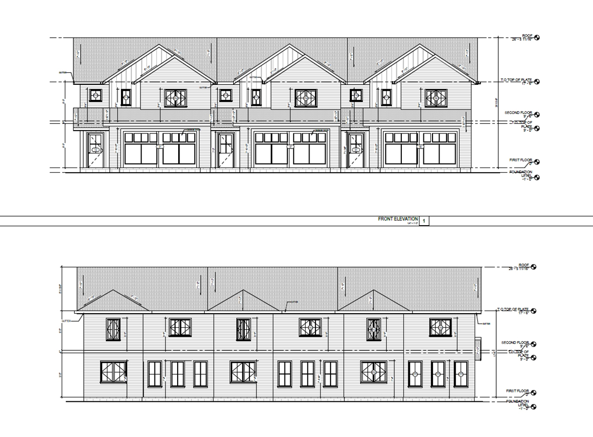
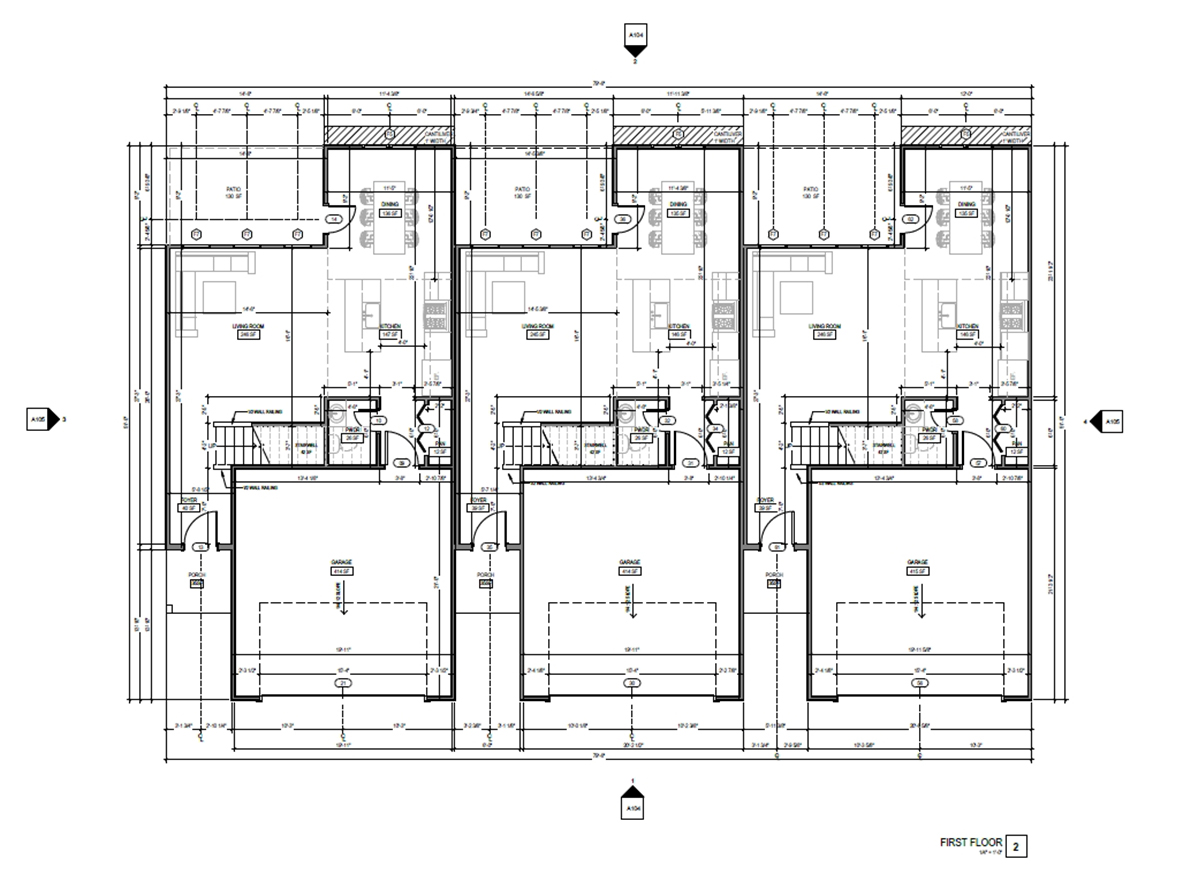
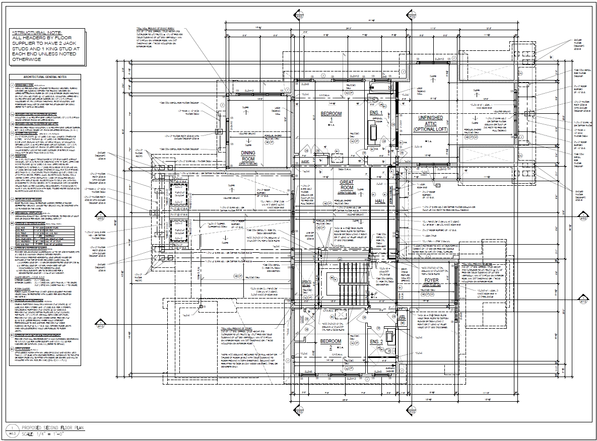
  • Architectural, Structural, and MEP BIM Modelling.
  • CAD to BIM Conversion
  • Point Cloud Scan To BIM
  • Sketch to BIM
  • Clash Detection & BIM Coordination
  • Construction Documentation & Shop Drawings
  • As-Built Drawings

SUBSCRIBE FOR NEW DESIGNS AND RENDERING STYLES EACH WEEK

We

Do Building Design

Create Artistic Renderings.

give life to your vision.

WhatsApp Chat on WhatsApp